Sanctuary & Ministry Center Construction

Church at Ross Bridge is excited to announce the groundbreaking for the vertical construction of our permanent Sanctuary and Ministry Center at 3100 Ross Bridge Parkway! Since launching in the Ross Bridge community in 2012, we have continued to grow in our mission to love God, love people, and live purposefully. This new ministry location is a significant milestone in our long-term vision!

Our current location at 2101 Grand Avenue (Clock Tower)—which we purchased and renovated in 2018—will remain an important part of our ministry footprint.

Below you will find basic information about the schedule and scope of the project, and once construction begins in late August, scheduling updates and new pictures will be added.

***We understand this project creates excitement and interest! However, for your safety and the safety of the workers, only authorized persons are allowed in areas under active construction. If you need to access the property beyond the secure gate, please contact the church office to make arrangements.***

Screenshot 2025-08-19 at 1.43.04 PM

Construction Overview

What is Phase 1b?
Phase 1b includes the vertical construction of our new sanctuary—the first of four buildings in the master plan for this property.

  • Phase 1a - Sitework (August 2024 – April 2025): Site preparation, land clearing, infrastructure installation, planting of 250+ pine and hardwood saplings, and the construction of Mount Chapel, an outdoor worship space.
  • Phase 1b - Building (August 2025 – August 2026): Full construction of the sanctuary building and surrounding features. This is the first step in vertical construction for our master planning, which will include four total buildings connected together (see master plan image below).
Screenshot 2026-03-11 at 10.31.50 AM

Timeline

When will Phase 1b begin and how long will it take?

  • Start Date: August 25, 2025 (weather permitting)
  • Duration: 12 months
  • Estimated Completion: August 26, 2026
Sanctuary Rendering - Nov 2025

What’s Included in Phase 1b?

  • Erosion control fencing and perimeter safety
  • Light site grading and foundation preparation
  • Pulling 3-Phase power (from the railroad tracks). This will be placed underground in the Right of Way area parallel to Ross Bridge Parkway
  • New second entrance/exit on the south side of the property for construction and future church use
  • 144 paved parking spaces plus 48 gravel overflow spaces. Additional paved spaces will be added during future construction.
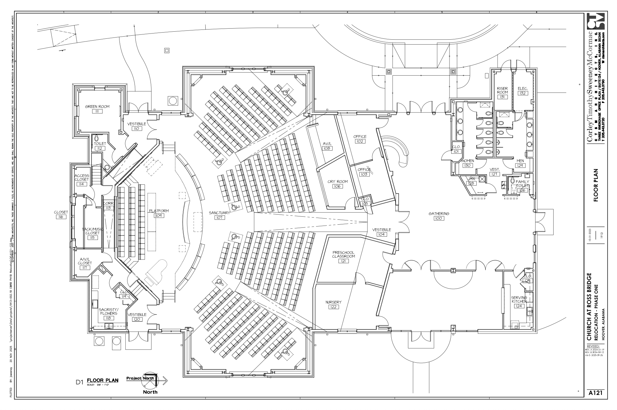
  • Sanctuary with seating for 414 [Rooms 102, 103, 121 & 122 are temporary rooms in the rear of the sanctuary. In the future, they will be removed to expand the sanctuary from 414 to 650 seats]
  • Spaces for childcare, Kid’s Worship, service kitchen, conference room, and staff offices
  • Landscaping with trees, bushes, sod. Additional reforestation of perimeter of property when silt-fencing is removed 
  • Installation of a permanent church sign
Screenshot 2025-11-25 at 4.08.16 PM

Our Current Facility

Will we keep our existing building?
Yes! For now, our current facility (the former Ross Bridge Welcome Center) will remain in use for small groups, ministry programs (kids, students, etc.) and staff offices. 

Sunday Morning Ministry

Will all Sunday morning ministries move to the new sanctuary when it opens?
Yes. Once completed, all Sunday morning activities—worship, childcare, Kid’s Worship, and hospitality—will be held in the new facility. Both the current and new buildings will continue to support ministries throughout the week.

Construction Schedule

When will construction occur?

  • Weekdays: Monday–Friday, 7:00 AM – 5:00 PM
  • Weekends: Occasional Saturday work may be required due to weather delays.

Project Partners

  • Architect: CTSM Architects, Inc.
  • Builder: Murray Construction
  • Lender: ServisFirst Bank

Future Construction

  • Phase 1b is is the first step in vertical construction for our master planning, which will include four total buildings connected together (see master plan image below).

Funding Strategy for Phase 1b

Screenshot 2026-03-03 at 12.00.36 PM

Additional Images Below

zg3TEXeQ
Screenshot 2025-08-14 at 10.22.31 AM